Cucq (62780) Local commercial exclusif
Réf : MG571
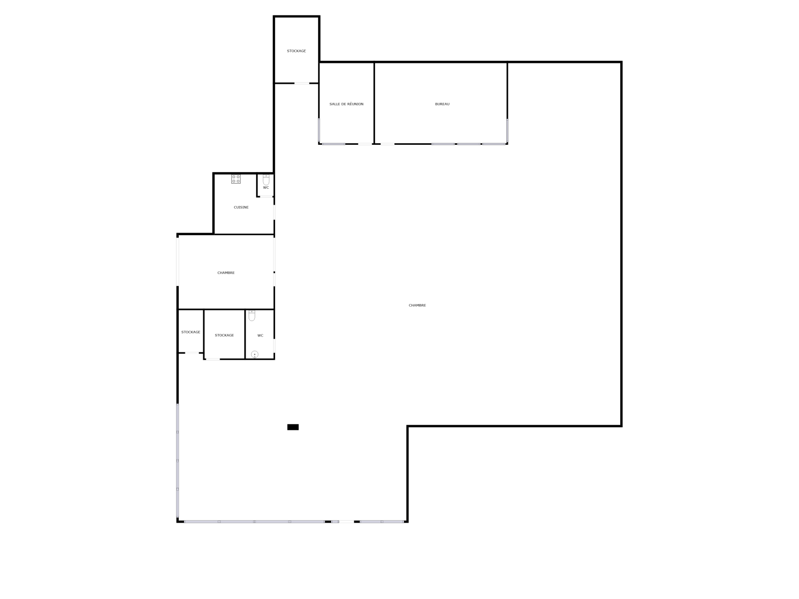
Découvrez en exclusivité ce magnifique local commercial de 610m² idéalement situé dans une zone commerciale en plein essor à Cucq. Actuellement occupé par un magasin de distribution professionnelle, ce bien est une opportunité exceptionnelle pour les investisseurs.
Loyer de 4000€/ mois soit 48 000€ annuel
Rentabilité : 9,1%
Acquisition amorti sur 11 ans
Caractéristiques du Local :
- Surface Totale : 610m²
- Localisation : Zone commerciale dynamique avec de nombreux programmes neufs en construction, offrant un potentiel de croissance considérable.
- Espace de Vente : Un vaste espace de vente lumineux et accueillant.
- Accès Véhicules : Le local dispose d'une porte de garage permettant l'entrée et la sortie de véhicules, facilitant ainsi la logistique et les livraisons.
- Bureaux : local equipé de plusieurs bureaux vitrés
- Installations :
- Toilettes modernes
- Salle de pause équipée d'une cuisine.
Pour plus d'informations ou pour organiser une visite, veuillez contacter l'Agence du Golf STELLA
Ne manquez pas cette occasion unique d'acquérir un local commercial de premier choix dans une zone en plein essor.
TRAD_SIROCCO_Caracteristique
Valeurs
Code postal
62780
Surface habitable (m²)
610 m²
Surface loi Carrez (m²)
610 m²
Nombre de pièces
8
TRAD_SIROCCO_Caracteristique
Valeurs
Cuisine
Américaine
Type de cuisine
Equipée
TRAD_SIROCCO_Caracteristique
Valeurs
Copropriété
OUI
DPE ANCIENNE VERSION
Détails des diagnostics énergétiques
DPE ANCIENNE VERSION
