Cucq (62780) STELLA-PLAGE CENTRE T4 EN DUPLEX AVEC GARAGE ET CAVE
À VENDRE – Superbe Duplex T4 en plein cœur de Stella-Plage
Découvrez ce magnifique appartement en duplex au style industriel, idéalement situé en plein centre de Stella-Plage, à proximité immédiate des commerces, de la plage et de toutes commodités.
Ce bien rare se compose de :
-
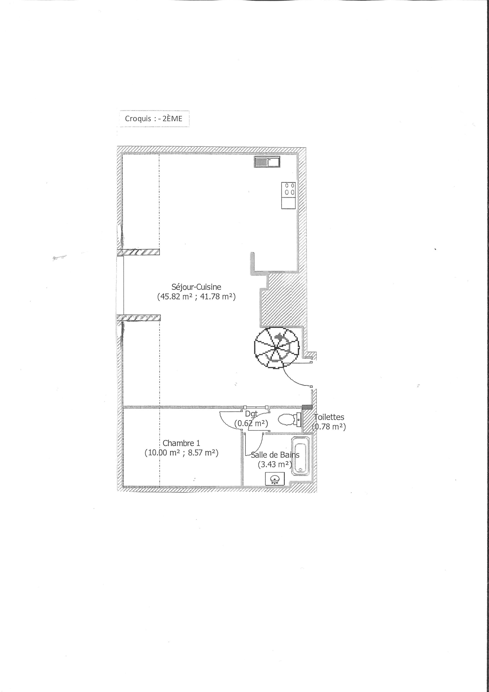
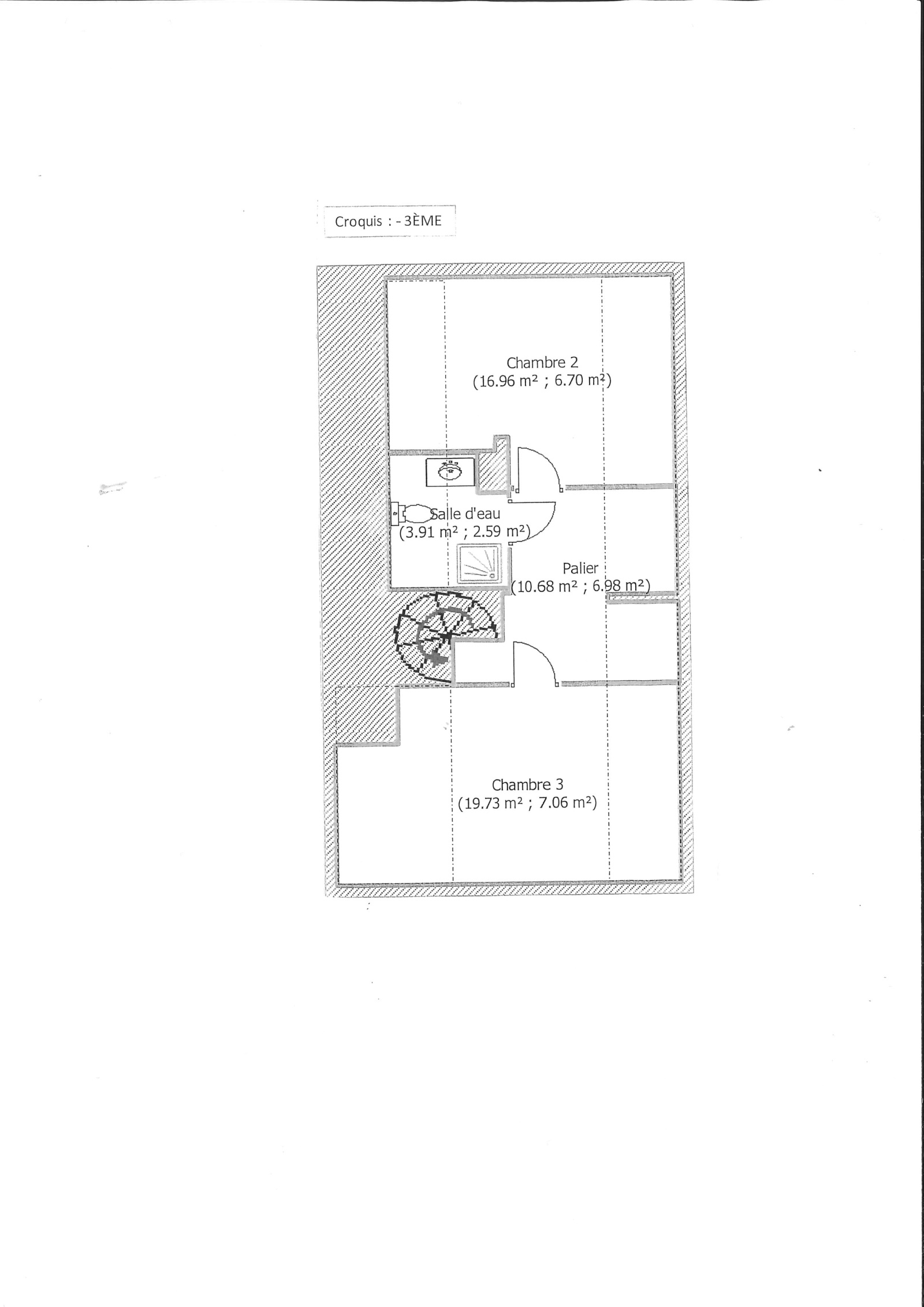
3 belles chambres lumineuses
-
Un vaste séjour de plus de 40m² avec du cachet industriel avec poutres apparentes et belle hauteur sous plafond
-
Une cuisine moderne ouverte moderne et équipée en partie
-
2 salle de bains (en bas baignoire en haut douche) contemporaine et 2 wc séparés
L’appartement offre une surface Loi Carrez de 78,51 m², complétée par 33,42 m² hors Carrez, soit un espace total généreux d’environ 112 m² au sol.
En annexes :
-
Un garage privatif
-
Une cave individuelle
Ce duplex allie charme, confort et emplacement privilégié, parfait pour une résidence principale, secondaire ou un investissement locatif de qualité.
Résidence sans ascenseur et bien sans balcon.
Stella-Plage – Le Touquet-Paris-Plage
BIEN RARE SUR LE SECTEUR
Nous contacter au 03 21 94 60 65 pour plus de renseignement et visites.
Les risques naturels et technologiques sont visibles sur le site www.gouv.georisques.fr
Les informations recueillies sur ce formulaire sont enregistrées dans un fichier informatisé par La Boite Immo agissant comme Sous-traitant du traitement pour la gestion de la clientèle/prospects de l'Agence / du Réseau qui reste Responsable du Traitement de vos Données personnelles.
La base légale du traitement repose sur l'intérêt légitime de l'Agence / du Réseau.
Elles sont conservées jusqu'à demande de suppression et sont destinées à l'Agence / au Réseau.
Conformément à la loi « informatique et libertés », vous disposez des droits d’accès, de rectification, d’effacement, d’opposition, de limitation et de portabilité de vos données. Vous pouvez retirer votre consentement à tout moment en contactant directement l’Agence / Le Réseau.
Consultez le site https://cnil.fr/fr pour plus d’informations sur vos droits.
Si vous estimez, après avoir contacté l'Agence / le Réseau, que vos droits « Informatique et Libertés » ne sont pas respectés, vous pouvez adresser une réclamation à la CNIL.
Nous vous informons de l’existence de la liste d'opposition au démarchage téléphonique « Bloctel », sur laquelle vous pouvez vous inscrire ici : https://www.bloctel.gouv.fr
Dans le cadre de la protection des Données personnelles, nous vous invitons à ne pas inscrire de Données sensibles dans le champ de saisie libre.
Ce site est protégé par reCAPTCHA, les Politiques de Confidentialité et les Conditions d'Utilisation de Google s'appliquent.
Détails des diagnostics énergétiques
À vendre – Maison 3 chambres avec jardin plein sud à Cucq
