Cucq (62780) Charmante maison à rénover proche centre et dunes
Maison à rénover, pleine de charme et de caractère.
Construite dans les années 50, cette maison située à proximité du centre de Stella offre un beau potentiel.
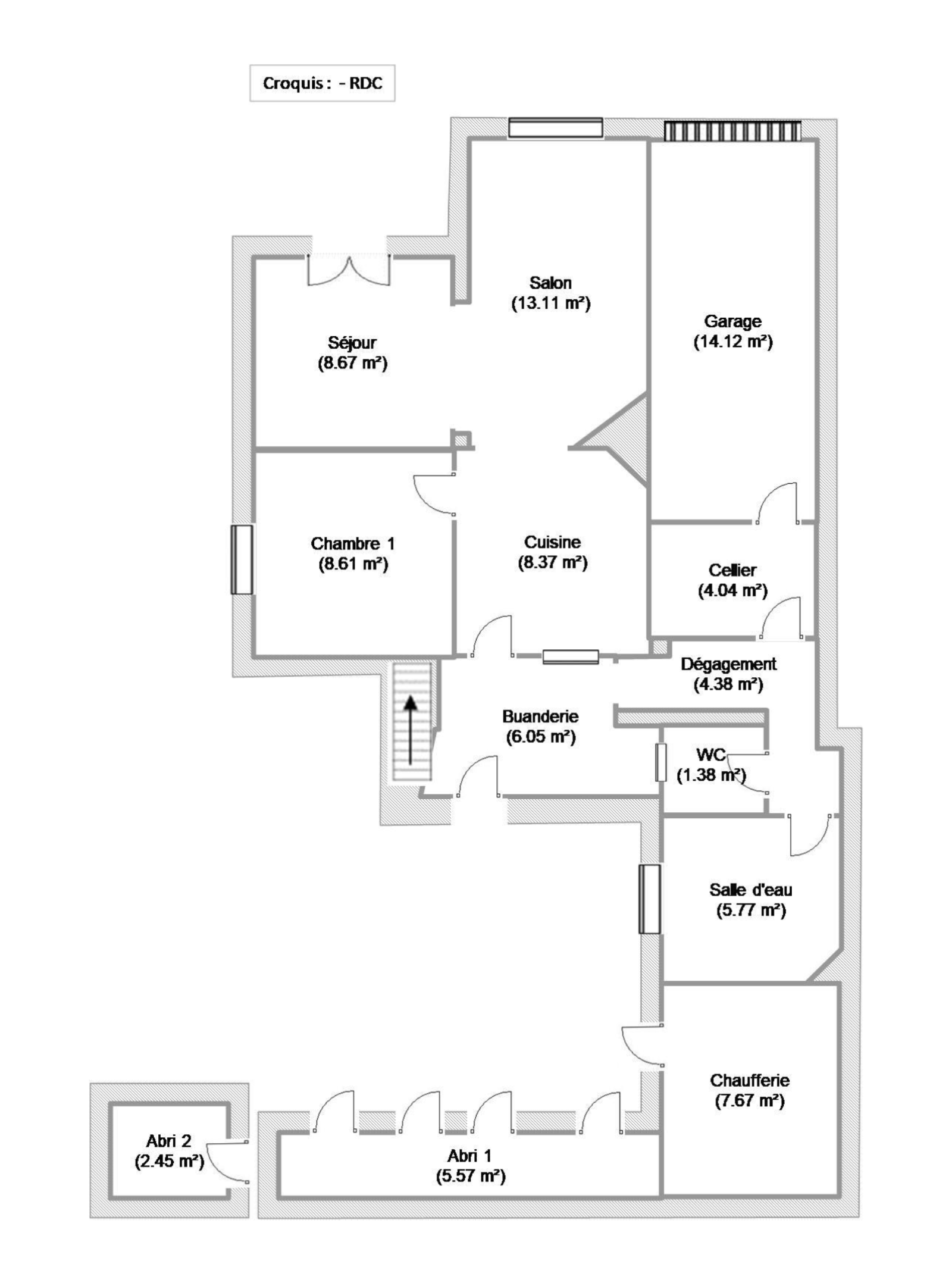
Au rez-de-chaussée, elle se compose d’un salon-séjour avec cuisine ouverte, d’une chambre, d’une buanderie, d’un cellier avec accès au garage, d’un WC, d’une salle d’eau ainsi que d’une chaufferie. Deux abris de jardin sont également accessibles à l’arrière de la maison.
À l’étage, vous trouverez une chambre en enfilade ainsi que deux autres chambres supplémentaires.
La maison nécessite d’importants travaux de rénovation afin de répondre aux standards actuels, mais bénéficie d’un emplacement idéal : à 500 m du centre-ville et à seulement 50 m des dunes, dans un secteur calme et résidentiel.
Le tout est édifié sur un terrain d’environ 300 m².
CONTACT : GIRARD Mathias 06 71 18 05 59
Les informations recueillies sur ce formulaire sont enregistrées dans un fichier informatisé par La Boite Immo agissant comme Sous-traitant du traitement pour la gestion de la clientèle/prospects de l'Agence / du Réseau qui reste Responsable du Traitement de vos Données personnelles.
La base légale du traitement repose sur l'intérêt légitime de l'Agence / du Réseau.
Elles sont conservées jusqu'à demande de suppression et sont destinées à l'Agence / au Réseau.
Conformément à la loi « informatique et libertés », vous disposez des droits d’accès, de rectification, d’effacement, d’opposition, de limitation et de portabilité de vos données. Vous pouvez retirer votre consentement à tout moment en contactant directement l’Agence / Le Réseau.
Consultez le site https://cnil.fr/fr pour plus d’informations sur vos droits.
Si vous estimez, après avoir contacté l'Agence / le Réseau, que vos droits « Informatique et Libertés » ne sont pas respectés, vous pouvez adresser une réclamation à la CNIL.
Nous vous informons de l’existence de la liste d'opposition au démarchage téléphonique « Bloctel », sur laquelle vous pouvez vous inscrire ici : https://www.bloctel.gouv.fr
Dans le cadre de la protection des Données personnelles, nous vous invitons à ne pas inscrire de Données sensibles dans le champ de saisie libre.
Ce site est protégé par reCAPTCHA, les Politiques de Confidentialité et les Conditions d'Utilisation de Google s'appliquent.
Détails des diagnostics énergétiques
Maison de 155m2 dans un domaine privé
