Cucq (62780) EN EXCLUSIVITE ! NOUVEAUTE A STELLA-PLAGE JOLIE VILLA INDIVIDUELLE 4 CHAMBRES JARDIN DEPENDANCE
Bienvenue dans cette maison qui dégage immédiatement une atmosphère accueillante et chaleureuse.
Située dans un secteur calme de Stella-Plage, elle offre l’équilibre parfait entre tranquillité et proximité du centre des dunes et de la plage.
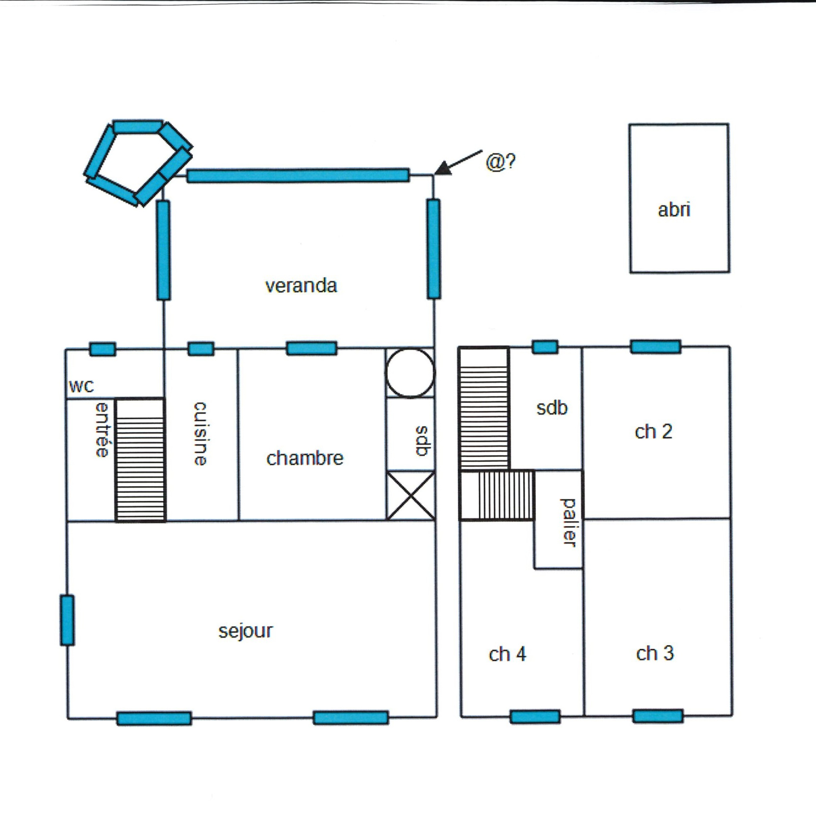
Édifiée sur un terrain de 443 m², elle s’ouvre sur un jardin arrière exposé plein sud, un véritable havre de paix où l’on imagine facilement partager des moments en famille, jardiner ou simplement profiter du soleil.
Le rez-de-chaussée offre un quotidien confortable grâce à une véranda chauffée, baignée de lumière, qui devient naturellement le cœur de la maison. Une chambre et une salle d’eau de plain-pied permettent de vivre sans contrainte, un vrai plus au quotidien.
À l’étage, trois autres chambres et une salle de bain accueillent chaleureusement famille et amis, chacune apportant son charme et son intimité.
Pour compléter le tout, une dépendance offre de nombreuses possibilités : rangement, atelier créatif, espace de loisirs ou petit coin d’indépendance… à vous d’y projeter vos envies.
On aime particulièrement :
-
La personnalité et le charme de la maison
-
La vie de plain-pied possible
-
La véranda chauffée, conviviale et lumineuse
-
Le jardin sud, intime et apaisant
-
La dépendance polyvalente
-
Le calme du secteur
-
La proximité de la plage et des commodités
Une maison où l’on se sent bien dès les premières minutes…
Contactez-nous au 03 21 94 60 65 pour venir la découvrir et vous y projeter.
Les risques naturels et technologiques sont visibles sur le site www.georisques.gouv.fr
Montant estimé des dépenses annuelles d'énergie pour un usage standard est compris entre 2 428 € et 3 286 € . Prix moyens des énergies indexés sur les années 2021, 2022 et 2023 (abonnements compris).
Les informations recueillies sur ce formulaire sont enregistrées dans un fichier informatisé par La Boite Immo agissant comme Sous-traitant du traitement pour la gestion de la clientèle/prospects de l'Agence / du Réseau qui reste Responsable du Traitement de vos Données personnelles.
La base légale du traitement repose sur l'intérêt légitime de l'Agence / du Réseau.
Elles sont conservées jusqu'à demande de suppression et sont destinées à l'Agence / au Réseau.
Conformément à la loi « informatique et libertés », vous disposez des droits d’accès, de rectification, d’effacement, d’opposition, de limitation et de portabilité de vos données. Vous pouvez retirer votre consentement à tout moment en contactant directement l’Agence / Le Réseau.
Consultez le site https://cnil.fr/fr pour plus d’informations sur vos droits.
Si vous estimez, après avoir contacté l'Agence / le Réseau, que vos droits « Informatique et Libertés » ne sont pas respectés, vous pouvez adresser une réclamation à la CNIL.
Nous vous informons de l’existence de la liste d'opposition au démarchage téléphonique « Bloctel », sur laquelle vous pouvez vous inscrire ici : https://www.bloctel.gouv.fr
Dans le cadre de la protection des Données personnelles, nous vous invitons à ne pas inscrire de Données sensibles dans le champ de saisie libre.
Ce site est protégé par reCAPTCHA, les Politiques de Confidentialité et les Conditions d'Utilisation de Google s'appliquent.
Détails des diagnostics énergétiques
Montant estimé des dépenses annuelles d'énergie pour un usage standard est compris entre 2 428 € et 3 286 € . Prix moyens des énergies indexés sur les années 2021, 2022 et 2023 (abonnements compris).
