Cucq (62780) SECTEUR TRES PRISE DE STELLA-PLAGE – VILLA INDIVIDUELLE AVEC GARAGE ET JARDIN DE 1100M²
Nichée dans un quartier calme et recherché, à proximité des commodités et à quelques minutes de la plage, cette villa de 117m2 habitable et 165m2 au sol offre un cadre de vie agréable et fonctionnel.
Au rez-de-chaussée, vous découvrirez une entrée accueillante ouvrant sur une grande pièce de vie d’environ 50 m² avec cuisine ouverte. Une chambre y est également présente, idéale pour un mode de vie de plain-pied. Une salle d’eau avec WC, une buanderie et un cellier complètent ce niveau, apportant praticité et rangements au quotidien.
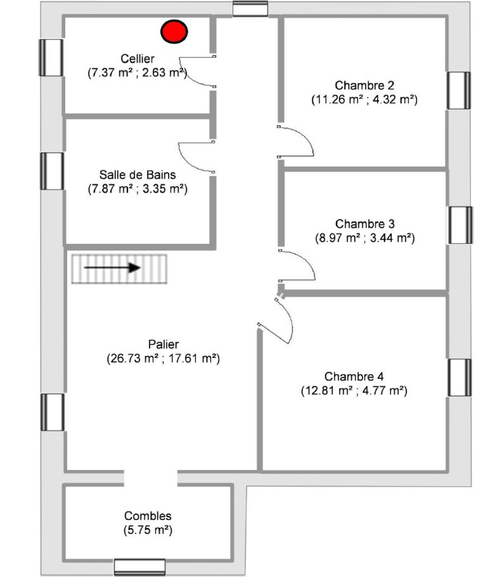
À l’étage, la maison propose trois chambres confortables, une salle de bains avec WC ainsi qu’un vaste palier d’environ 25 m². Cet espace ouvert offre de nombreuses possibilités d’aménagement : coin bureau, salle de jeux ou espace détente selon vos envies.
À l’extérieur, le jardin arboré de plus de 1100 m², soigneusement entretenu, constitue un véritable havre de paix. Un garage indépendant d’environ 50 m² vient parfaire l’ensemble, idéal pour stationner plusieurs véhicules ou aménager un espace atelier.
Contactez nous pour une visite : 03 21 94 60 65
Consultez les risques auxquels ce bien est exposé sur le site : www.georisques.gouv.fr
Ce bien fait l'objet d'une délégation de mandat.
Les informations recueillies sur ce formulaire sont enregistrées dans un fichier informatisé par La Boite Immo agissant comme Sous-traitant du traitement pour la gestion de la clientèle/prospects de l'Agence / du Réseau qui reste Responsable du Traitement de vos Données personnelles.
La base légale du traitement repose sur l'intérêt légitime de l'Agence / du Réseau.
Elles sont conservées jusqu'à demande de suppression et sont destinées à l'Agence / au Réseau.
Conformément à la loi « informatique et libertés », vous disposez des droits d’accès, de rectification, d’effacement, d’opposition, de limitation et de portabilité de vos données. Vous pouvez retirer votre consentement à tout moment en contactant directement l’Agence / Le Réseau.
Consultez le site https://cnil.fr/fr pour plus d’informations sur vos droits.
Si vous estimez, après avoir contacté l'Agence / le Réseau, que vos droits « Informatique et Libertés » ne sont pas respectés, vous pouvez adresser une réclamation à la CNIL.
Nous vous informons de l’existence de la liste d'opposition au démarchage téléphonique « Bloctel », sur laquelle vous pouvez vous inscrire ici : https://www.bloctel.gouv.fr
Dans le cadre de la protection des Données personnelles, nous vous invitons à ne pas inscrire de Données sensibles dans le champ de saisie libre.
Ce site est protégé par reCAPTCHA, les Politiques de Confidentialité et les Conditions d'Utilisation de Google s'appliquent.
Détails des diagnostics énergétiques
Charmante villa Familiale avec Véranda Rétractable, Champs...
