Cucq (62780) SECTEUR PLAGE DE STELLA NOUVELLE EXCLUSIVITE ! VILLA 4 PIECES AVEC SOUS-SOL ET JARDIN
NOUVEAUTE ! EN EXCLUSIVITE CHEZ NOUS !
Secteur plage de STELLA, jolie villa d'environ 80m² habitable, sous-sol et garage, jardin ensoleillé.
Elle comprend;
Au rez-de-chaussée;
Une entrée avec vestaire, cuisine équipée avec coin repas, séjour avec poêle à bois, WC, terasse jardinEST OUEST.
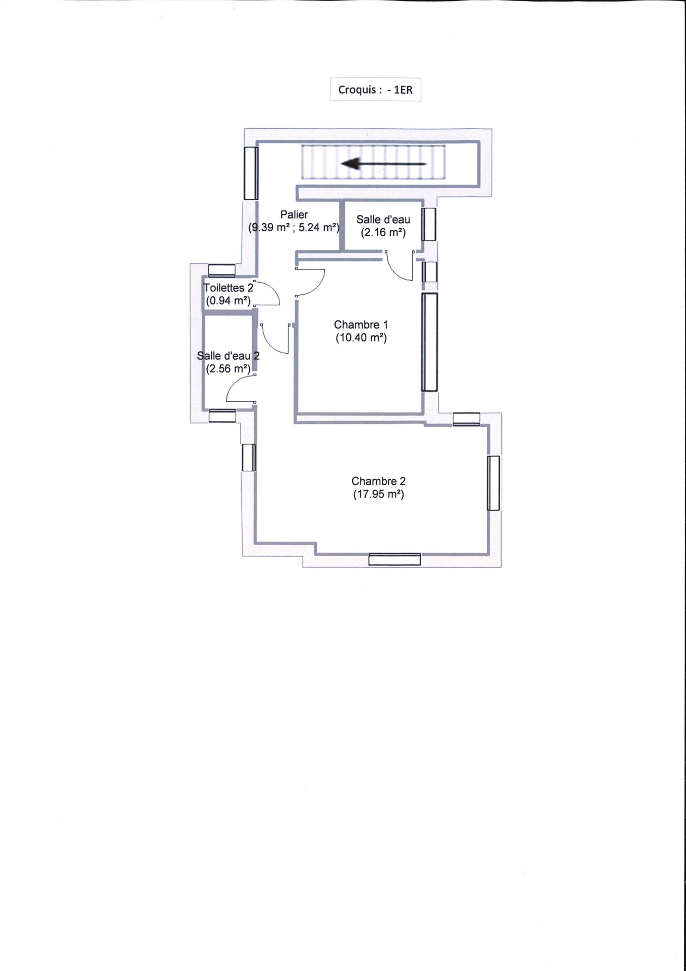
Au premier étage;
Palier desservant 1 chambre avec salle d'eau et balcon privatifs vue mer, 1 suite parentale d'environ 18m² accès balcon vue mer, salle d'eau, wc.
Combles pouvant faire office de chambre supplémentaire.
Par ailleurs; sous-sol d'environ 45m2 avec garage.
Jardin d'environ 350M²
Cette villa très chaleureuse et confortable est située à proximité immédiate de la plage et des commerces !
Les petit + selon nous :
- A moins de 100m de la plage
- Assanissement conforme
Pour plus d'informations contactez l'agence
Visites sur rendez-vous au 06 44 24 21 79.
Etat des risques naturels visibles sur le site www.georisques.gouv.fr
Montant estimé des dépenses annuelles d'énergie pour un usage standard est compris entre 1 426 € et 1 930 € . Prix moyens des énergies indexés sur les années 2021, 2022 et 2023 (abonnements compris).
Les informations recueillies sur ce formulaire sont enregistrées dans un fichier informatisé par La Boite Immo agissant comme Sous-traitant du traitement pour la gestion de la clientèle/prospects de l'Agence / du Réseau qui reste Responsable du Traitement de vos Données personnelles.
La base légale du traitement repose sur l'intérêt légitime de l'Agence / du Réseau.
Elles sont conservées jusqu'à demande de suppression et sont destinées à l'Agence / au Réseau.
Conformément à la loi « informatique et libertés », vous disposez des droits d’accès, de rectification, d’effacement, d’opposition, de limitation et de portabilité de vos données. Vous pouvez retirer votre consentement à tout moment en contactant directement l’Agence / Le Réseau.
Consultez le site https://cnil.fr/fr pour plus d’informations sur vos droits.
Si vous estimez, après avoir contacté l'Agence / le Réseau, que vos droits « Informatique et Libertés » ne sont pas respectés, vous pouvez adresser une réclamation à la CNIL.
Nous vous informons de l’existence de la liste d'opposition au démarchage téléphonique « Bloctel », sur laquelle vous pouvez vous inscrire ici : https://www.bloctel.gouv.fr
Dans le cadre de la protection des Données personnelles, nous vous invitons à ne pas inscrire de Données sensibles dans le champ de saisie libre.
Ce site est protégé par reCAPTCHA, les Politiques de Confidentialité et les Conditions d'Utilisation de Google s'appliquent.
Détails des diagnostics énergétiques
Montant estimé des dépenses annuelles d'énergie pour un usage standard est compris entre 1 426 € et 1 930 € . Prix moyens des énergies indexés sur les années 2021, 2022 et 2023 (abonnements compris).
Maison de 155m2 dans un domaine privé
