Cucq (62780) EN EXCLUSIVITE ! Maison de 56 m² avec vue sur les dunes – À 100 m de la plage
Idéalement située à Stella-Plage, cette maison de 56 m² vous séduira par son cadre exceptionnel et sa proximité immédiate avec la plage, à seulement 100 mètres.
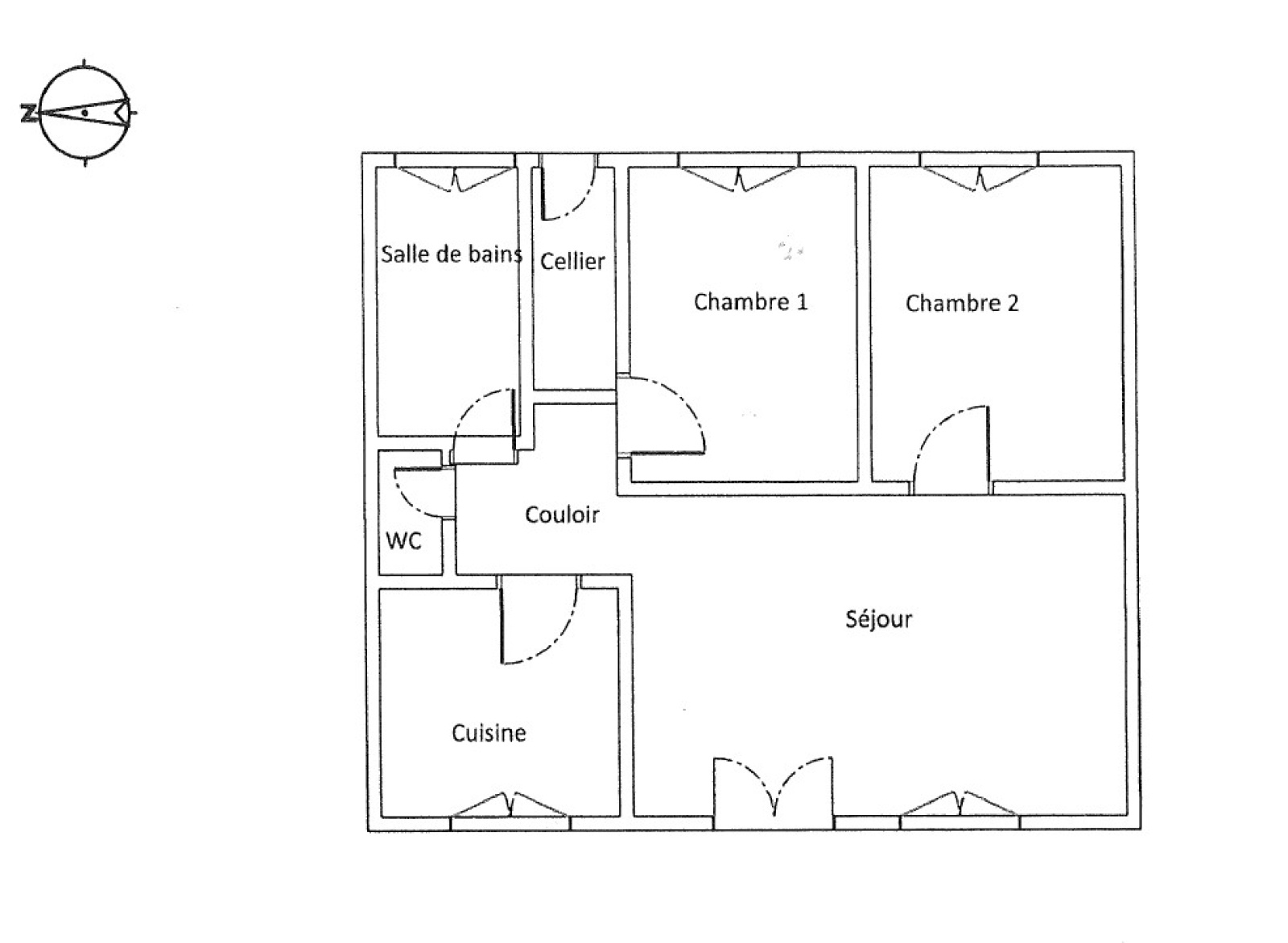
Elle se compose d’une pièce de vie lumineuse, d’une cuisine séparée, de deux chambres confortables, d’une salle de bain et d’un WC. Son atout principal : une superbe vue dégagée sur les dunes.
Parfait pour une résidence secondaire ou un investissement locatif, ce bien rare sur le marché allie tranquillité et accès direct aux plaisirs de la mer.
La villa est raccordée au réseau d'assainissement collectif de la station.
Situation : en Zone Naturelle.
Contactez nous pour la visiter : 03 21 94 60 65
Les risques auxquels ce bien est exposé sont consultables sur le site Géorisques : www.georisques.gouv.fr
Logement à consommation énergétique excessive : classe G
Montant estimé des dépenses annuelles d'énergie pour un usage standard est compris entre 1 100 € et 1 510 € . Prix moyens des énergies indexés sur les années 2021, 2022 et 2023 (abonnements compris).
Détails des diagnostics énergétiques
Logement à consommation énergétique excessive : classe G
Montant estimé des dépenses annuelles d'énergie pour un usage standard est compris entre 1 100 € et 1 510 € . Prix moyens des énergies indexés sur les années 2021, 2022 et 2023 (abonnements compris).
