Stella (62780) EXCLUSIVITE APPARTEMENT T2 EN DUPLEX A STELLA PLAGE
Réf : 314
L'Agence du Golf a le plaisir de vous présenter cet appartement d'environ 40m².
Ce charmant duplex se compose comme suit:
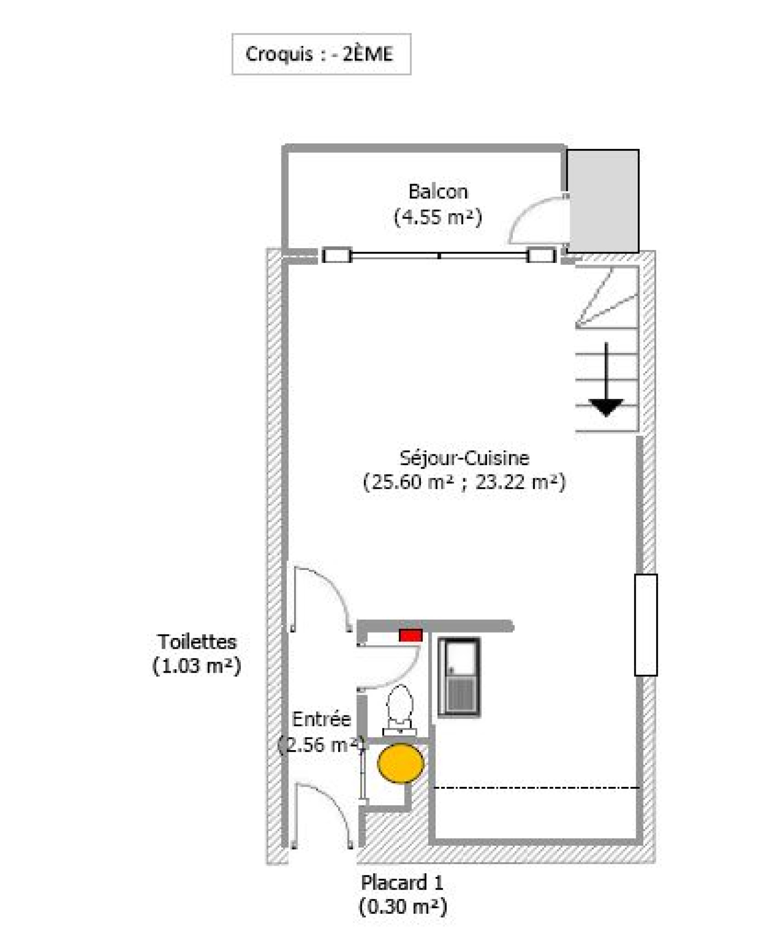
Entrée, placard, salon / séjour ouvert sur la terrasse PLEIN OUEST AVEC UNE JOLIE VUE DEGAGEE
kitchenette, WC.
A l'étage; Palier, Salle d'eau, chambre.
Ce bien s'accompagne d'une place de parking ainsi qu'une cave.
BELLE LUMINOSITE ET VUE AGREABLE !
Visites sur rendez-vous.
Réf : 314
Consultante Marie BIVER 06 44 24 21 79
marie.biver@agencedugolf-stella.fr
TRAD_SIROCCO_Caracteristique
Valeurs
Code postal
62780
Surface habitable (m²)
39,86 m²
Surface loi Carrez (m²)
39,86 m²
Nombre de chambre(s)
1
Nombre de pièces
2
Etage
2
TRAD_SIROCCO_Caracteristique
Valeurs
Nb de salle d'eau
1
Cuisine
Kitchenette
Mode de chauffage
Electrique
Type de chauffage
Radiateur
Format de chauffage
Individuel
Balcon
OUI
Cave
OUI
Nombre de parking
1
Année de construction
1982
TRAD_SIROCCO_Caracteristique
Valeurs
Copropriété
OUI
nombre de lots
14
Quote Part annuelle des charges
603 €
plan de sauvegarde
NON
statut du syndic
pas de procédure en cours
TRAD_SIROCCO_Caracteristique
Valeurs
Les honoraires d'agence seront intégralement à la charge du vendeur
Charges
50 €
Taxe foncière annuelle
700 €
DPE ANCIENNE VERSION
Détails des diagnostics énergétiques
DPE ANCIENNE VERSION
