Stella (62780) STELLA PLAGE MAISON 2 CHAMBRES JARDIN CENTRE DE LA STATION
RARE ! maison située au coeur de la station de Stella-Plage !
Comprenant; Au rez-de-chaussée salon séjour avec cuisine américaine meublée et équipée donnant sur terrasse extérieure suspendue à l'arrière de la maison et d'une terrasse avec un jardinet sur le devant côté centre ville.
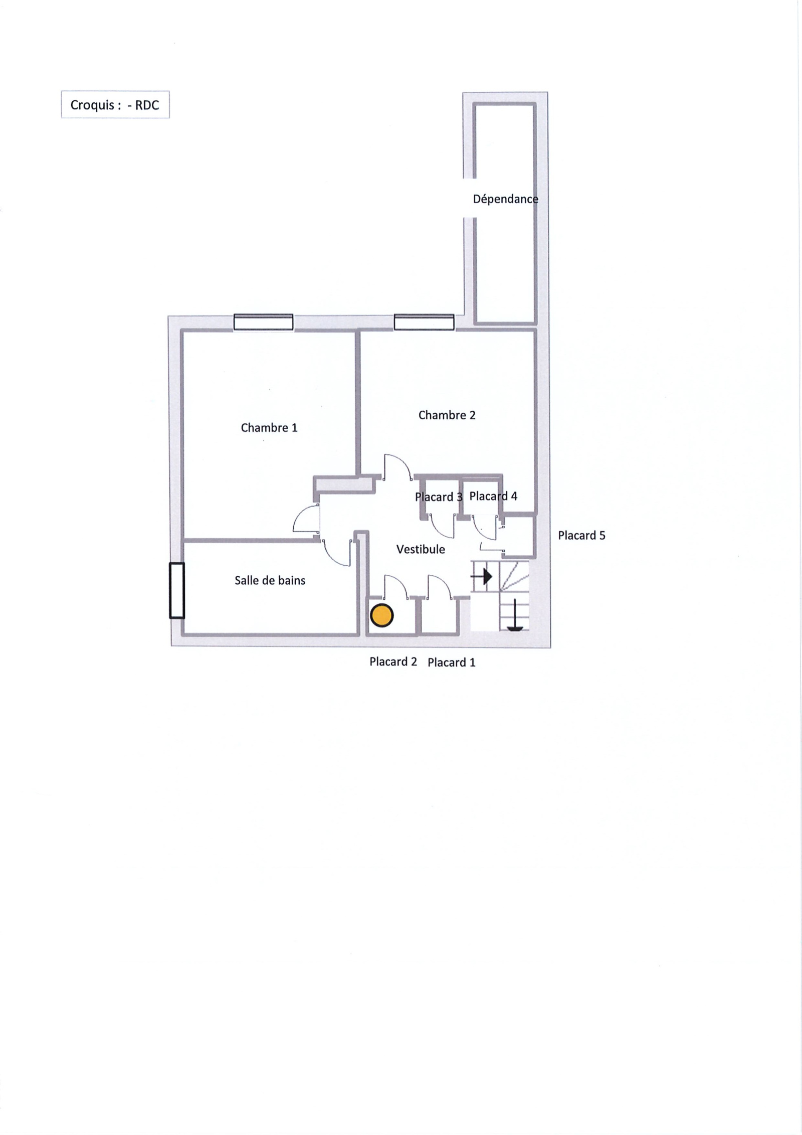
Au niveau -1 : Dégagement avec de nombreux placards, 2 chambres, salle de bains avec baignoire et douche.
Par ailleurs; Cellier, jardin avant, arrière.
Jardin d' environ 210m² clôturé avec portail coulissant.
Ce bien est en copropriété de terrain de 2 lots.
Chauffage électrique et poêle à bois. Menuiseries PVC double vitrage avec volets électrique.
Etat des risques visibles sur le site www.georisques.gouv.fr
Conatctez-nous au 03 21 94 60 65 pour tout renseignement complémentaire ou pour un rendez-vous de visite.
Montant estimé des dépenses annuelles d'énergie pour un usage standard est compris entre 1 872 € et 2 532 € . Prix moyens des énergies indexés sur les années 2021, 2022 et 2023 (abonnements compris).
Les informations recueillies sur ce formulaire sont enregistrées dans un fichier informatisé par La Boite Immo agissant comme Sous-traitant du traitement pour la gestion de la clientèle/prospects de l'Agence / du Réseau qui reste Responsable du Traitement de vos Données personnelles.
La base légale du traitement repose sur l’intérêt légitime de l'Agence / du Réseau.
Elles sont conservées jusqu'à demande de suppression et sont destinées à l'Agence / au Réseau.
Conformément à la loi « informatique et libertés », vous pouvez exercer votre droit d'accès aux données vous concernant et les faire rectifier en contactant l'Agence / le Réseau.
Si vous estimez, après avoir contacté l'Agence / le Réseau, que vos droits « Informatique et Libertés » ne sont pas respectés, vous pouvez adresser une réclamation à la CNIL.
Nous vous informons de l’existence de la liste d'opposition au démarchage téléphonique « Bloctel », sur laquelle vous pouvez vous inscrire ici : https://www.bloctel.gouv.fr
Dans le cadre de la protection des Données personnelles, nous vous invitons à ne pas inscrire de Données sensibles dans le champ de saisie libre
Ce site est protégé par reCAPTCHA, les Politiques de Confidentialité et les Conditions d'Utilisation de Google s'appliquent.
Détails des diagnostics énergétiques
Montant estimé des dépenses annuelles d'énergie pour un usage standard est compris entre 1 872 € et 2 532 € . Prix moyens des énergies indexés sur les années 2021, 2022 et 2023 (abonnements compris).
À vendre – Maison 3 chambres avec jardin plein sud à Cucq
