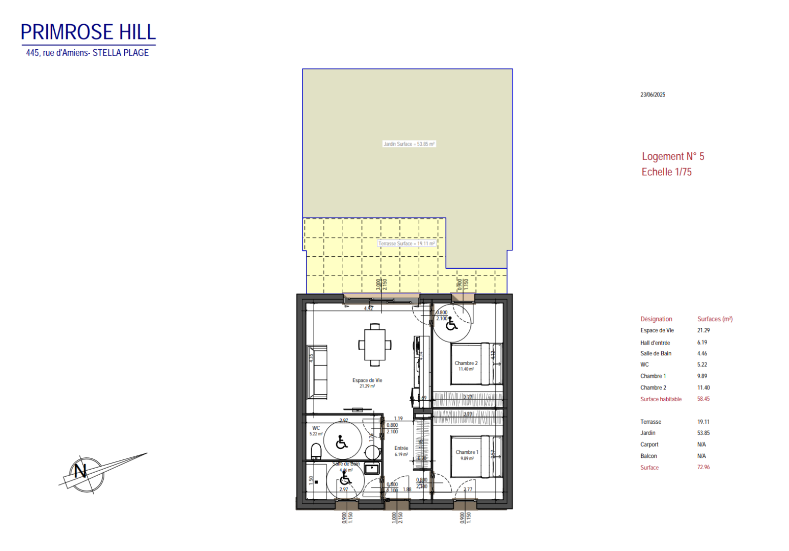
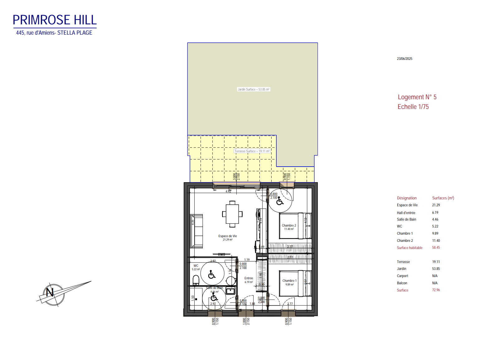
Cucq (62780) Appartement T3 avec balcon
Découvrez cet appartement de 58,12 m² habitables, situé dans une résidence neuve aux prestations de qualité. Il dispose d’un superbe extérieur de 8.28m², idéal pour profiter pleinement des beaux jours.
L’appartement se compose d’une pièce de vie avec cuisine ouverte, prolongée par une baie vitrée coulissante donnant sur un balcon d'angle, de deux chambres, d’une salle d’eau, d’un cellier avec toilettes séparées.
Un parking privatif et un local à vélos commun viennent compléter ce bien.
Les travaux ont déjà débuté et la livraison est prévue pour fin 2026. Une opportunité idéale dans un cadre de vie agréable.
Contactez nous pour plus d'informations : 03-21-94-60-65
Les informations recueillies sur ce formulaire sont enregistrées dans un fichier informatisé par La Boite Immo agissant comme Sous-traitant du traitement pour la gestion de la clientèle/prospects de l'Agence / du Réseau qui reste Responsable du Traitement de vos Données personnelles.
La base légale du traitement repose sur l'intérêt légitime de l'Agence / du Réseau.
Elles sont conservées jusqu'à demande de suppression et sont destinées à l'Agence / au Réseau.
Conformément à la loi « informatique et libertés », vous disposez des droits d’accès, de rectification, d’effacement, d’opposition, de limitation et de portabilité de vos données. Vous pouvez retirer votre consentement à tout moment en contactant directement l’Agence / Le Réseau.
Consultez le site https://cnil.fr/fr pour plus d’informations sur vos droits.
Si vous estimez, après avoir contacté l'Agence / le Réseau, que vos droits « Informatique et Libertés » ne sont pas respectés, vous pouvez adresser une réclamation à la CNIL.
Nous vous informons de l’existence de la liste d'opposition au démarchage téléphonique « Bloctel », sur laquelle vous pouvez vous inscrire ici : https://www.bloctel.gouv.fr
Dans le cadre de la protection des Données personnelles, nous vous invitons à ne pas inscrire de Données sensibles dans le champ de saisie libre.
Ce site est protégé par reCAPTCHA, les Politiques de Confidentialité et les Conditions d'Utilisation de Google s'appliquent.
Détails des diagnostics énergétiques
3 pièces 54 m²
